価格
200万円
種別
中古戸建
--
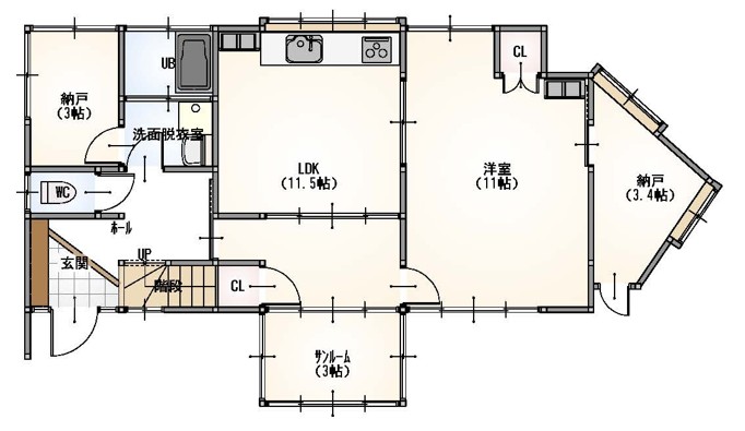
間取
4LDK
---
所在地
長崎県佐世保市原分町369-3
原分町売家
原分町売家
交通
西高校入口 バス停 徒歩10分
築年月
1973/10
新築/中古
中古
面積
89.42m²
計測方式
バルコニー面積
部屋・建物向き
建物階数
地上2階
部屋階数
2階
部屋/区画番号
総戸/区画数
建物構造
木造
間取内容
駐車場
無
取引態様
一般
引渡/入居時期
即時
現況
空家
地目
宅地
用途地域
第一種低層住居専用
都市計画
市街化区域
地勢
ひな段
建ぺい率
60%
容積率
100%
土地権利
所有権
接道状況
一方
接道方向1
南
接道間口1
m
位置指定道路1
位置指定道路
周辺環境
大野小学校 大野中学校
設備・条件
ペット可能 給湯 追い焚き 独立洗面台 トイレ専用 温水洗浄便座 冷房 暖房 エアコン 室内洗濯機置き場 都市ガス 排水汲取
物件番号
自社物
先物
状態
売出中
※物件掲載内容と現況に相違がある場合は現況を優先と致します。













