価格
500万円
種別
中古戸建
--
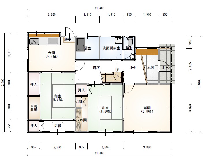
間取
5K
---
所在地
長崎県佐世保市横尾町
横尾町売家
横尾町売家
交通
山の田バス停 徒歩10分
築年月
1976/12
新築/中古
中古
面積
111.26m²
計測方式
バルコニー面積
部屋・建物向き
建物階数
地上2階
部屋階数
2階
部屋/区画番号
総戸/区画数
建物構造
木造
敷地全体面積
282.93m²
延べ床面積
111.26m²
間取内容
洋室8.8畳 1階 和室6.6畳 1階 和室6.6畳 1階 K6.7畳 1階 洋室6.6畳 2階 和室6.6畳 2階
駐車場
空有 1台可
取引態様
一般
引渡/入居時期
相談
現況
空家
地目
宅地
用途地域
第一種低層住居専用
都市計画
市街化区域
地勢
土地面積
282.93m²
土地面積計測方式
公簿
建ぺい率
60%
容積率
100%
土地権利
接道状況
一方
周辺環境
春日小学校 清水中学校
設備・条件
都市ガス 公営水道 排水下水 駐車場有
物件番号
自社物
先物
状態
売出中
※物件掲載内容と現況に相違がある場合は現況を優先と致します。






